Вибачте цей текст доступний тільки в “Російська”.

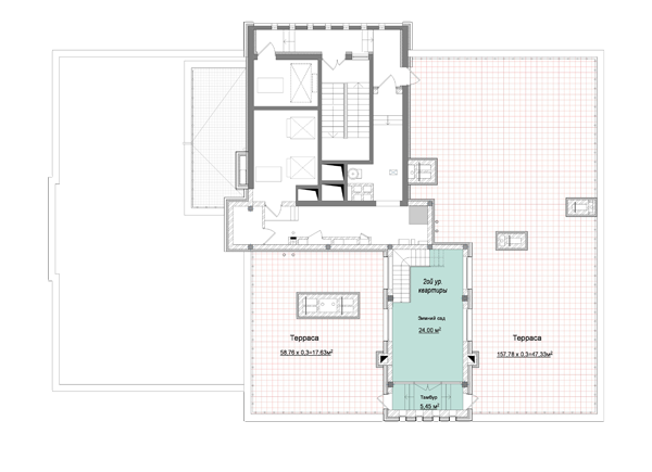
Квартира 323 (
Назад
380442992001

0442992823